竹韵书简,绘就东方华章
作为“我国城乡建设科技领域的国家队”,
中国建科担纲了
2025年大阪世博会中国馆
建筑概念方案设计。
中国工程院院士、
中国建科首席科学家、
中国建筑设计研究院
总建筑师崔愷以“中华书简”为灵感,
诠释了天人合一的中华优秀传统、
人与自然和谐共生、
绿色低碳的当代中国设计理念,

崔愷:“我之前在敦煌设计了一个遗址博物馆,我了解到在那时就有大量书简从长安城传播到西域边关,书简作为信息传递的重要媒介给我留下了深刻印象。片片竹简串接成卷,便于携带和保存,阅读时渐次展开,简顺绳软,自成曲面。中国馆此次的设计方法就是利用书简的打开模式,给人们呈现出一种徐徐展开的感觉,它承载着中华民族几千年的智慧与记忆。书简上有很多古老的篆字,相信有不少日本老人非常喜欢中国的书法,他们喜欢阅读和研究这些汉字,汉字是一种代表中国的特定的表达符号,是文化沟通交流重要的方式。”


中国馆在设计与建造过程中
充分体现绿色可持续的核心理念。
竹材作为最适合表达
“竹简”意象的材料,
本身也具有生长周期短、碳吸收量大、
易降解、材性柔韧、传热系数低等优点,
成为建馆的主材。
屋面上轻透的阳光板如宣纸一般,
引入了自然光。
竹墙间的景窗缝隙,
可以导入微风。
装配式、预制化的建造方式,
提高了建造效率和质量,
便于会后再利用和回收。
大阪世博会中国馆开馆后,
中外嘉宾高度评价
中国馆建筑外观和精彩展项内容,
赞赏中国馆展现的
五千年中华文明深厚底蕴
和新时代高质量发展辉煌成就,
期盼各方通过大阪世博会
加强互学互鉴,实现互利共赢。
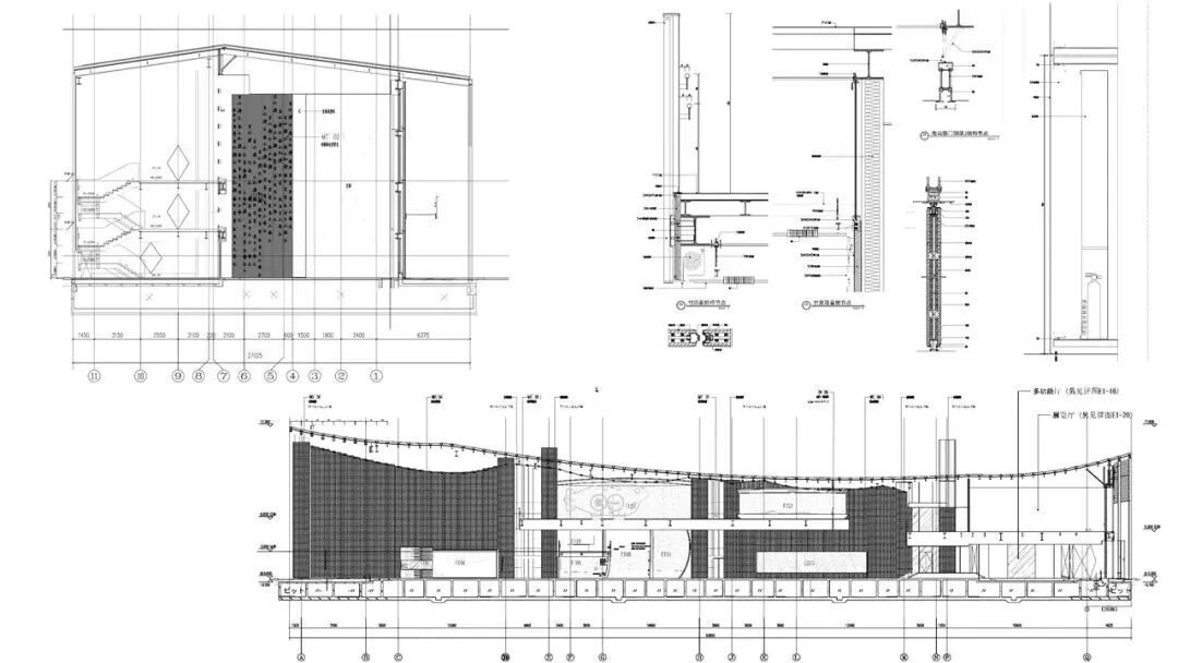
创新技术与精细管理,打造国际工程典范

中国建研院将建筑与展陈、
室内与室外融合设计,
统一以中华书简为语汇,
打造内外统一的空间形态,
充分运用有限而变化的建筑空间
部署展览叙事单元,
将建筑形态转化为展陈的叙事语言,
让建筑会讲中国故事。



亮点一:装配式可逆化
建造设计为工期提速
亮点二:低碳材料与技术
为绿色节能提效


亮点三:“堵疏结合”的屋面防水
为安全提质

“八网”融合,绘就“现代版桃花源”
作为中国馆内唯一参展的中央企业,


来源:中国会展